VB-7000電動二通閥
產品概況
產品型號:VB-7000
公稱通徑:DN65~200mm
介質溫度:2℃~95℃
適用介質:蒸汽、冷水、熱水
應用范圍:用于空氣調節、熱通風、熱處理廠的工業和工行業的流體控制
設計標準:GB/T17213
檢驗標準:GB/T4213
法蘭標準:JIS B220、JB/T79、ANSI B16.5-1981、GB/T9113、HG20594-97、HG20618-97等
一、VB-7000電動二通閥工作原理
百鋼閥門集團生產銷售的VB-7000電動二通閥驅動器是由可逆同步馬達驅動,并帶磁性離合器。馬達通過馬達轉子與離合器所產生的磁性作用,能在停頓的情況下產生穩定的扭力。故此當馬達沒有電流通過時能穩定地停頓在任何一點,當閥門全開或全關時磁離合器分離,停止調節。驅動器的遞增式或比例式控制器所發訊號能使馬達順時轉動或逆時轉動。
二、VB-7000電動二通閥特點
24V交流電壓的同步可逆轉馬達。 1000牛頓力。 限位磁性離合器。
動作利用齒輪傳送,輸出齒輪螺桿組采用繞中心軸旋轉的平面滾動軸承,閥軸則采用中央螺絲管道以及定位圓片。 閥動位置指示器。
防火的ABS塑料外罩。 可附加手動控制桿。 現場安裝方便。 適合23mm以下的直行程調節閥。
1、執行器選用鑄鋁支架及塑料外殼,體積小、重量輕。
2、選用永磁同步電機,并帶有磁滯離合機構,具有可靠的自我保護功能。
3、適合多種控制信號:增量(浮點)、電壓(0~10V)、電流(4~20mA)。
4、具有0~10V或4~20mA反饋信號(選配)。
5、傳動齒輪采用金屬齒輪,大大提高了驅動器的使用壽命。
6、功耗低、輸出力大、噪音小。
7、閥體有鑄銅、鑄鐵、球墨鑄鐵多種材質可供選擇,以適合不同工作介質及溫度的要求。
8、閥體有螺紋連接和法蘭連接兩種,安裝方便。
9、閥體結構形式有:兩通閥(單座)、兩通平衡閥(平衡式)。
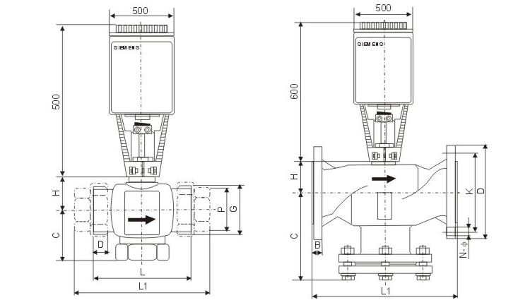
三、VB-7000電動二通閥主要連接尺寸

| 型號 | 規格 | L | H | H1 | D | C | K | n-d | 壓差KPa | 重量(KG) | 行程 |
| VB-7000 | DN65 | 290 | 158 | 150 | 185 | 20 | 145 | 4-18 | 400 | 23 | 45 |
| DN80 | 310 | 195 | 185 | 200 | 20 | 160 | 8-18 | 400 | 31 | 45 | |
| DN100 | 350 | 216 | 205 | 220 | 20 | 180 | 8-18 | 300 | 39 | 45 | |
| DN125 | 400 | 237 | 230 | 250 | 22 | 210 | 8-18 | 200 | 66 | 45 | |
| DN150 | 480 | 282 | 280 | 285 | 22 | 240 | 8-22 | 100 | 87 | 45 | |
| DN200 | 533 | 289 | 340 | 340 | 30 | 295 | 12-22 | 100 | 90 | 45 |
溫馨提示:
本文中所有文字、數據、圖片均只適用于參考。需要查看更多的VB-7000電動二通閥性能參數、結構尺寸參數、價格等詳情,或要求高質量印刷樣本,請聯系我們。