Q347F/W/H/Y鑄鋼固定球閥
產品概況
產品型號:Q347F/W/H/Y
公稱通徑:NPS1/2"~64"
公稱壓力:Class150~2500LB
適用溫度:-196~450℃
適用介質:水、氣、油品、天然氣和酸堿腐蝕介質
設計制造:API6D
結構長度:ANSI BI6.10
連接法蘭:ANSI BI6.5MSS-SP44
檢查和試驗:API STD.598
一、Q347F/W/H/Y鑄鋼固定球閥產品概述:
百鋼閥門集團生產銷售的Q347F/W/H/Y鑄鋼固定球閥二片式結構,其中部螺紋連接,并以PTFE墊片密封;另一種是三片式結構,中部用螺栓栓結。根據所選的閥座與墊片/填料的材料不同,適應不同的工作溫度和介質。產品主要適用于化工、冶金、石油、制藥等行業的各種高壓介質輸送管道中,適用溫度:-196~450℃;驅動方式:手動、氣動、電動、液動、渦輪動等;公稱通徑:1/2"~12";公稱壓力:150LB~1500LB;適用介質:水、氣、油品、天然氣和酸堿腐蝕介質。
二、Q347F/W/H/Y鑄鋼固定球閥主要材質:
| 零件名稱 | CF8系列 | CF3系列 | CF8M系列 | CF3M系列 | WCB系列 |
| 閥體 /閥蓋 | CF8 | CF3 | CF8M | CF3M | WCB |
| 球體 | F304 | F304L | F316 | F316L | 1Cr13 |
| 閥座 | PTFE/PPL | PTFE/PPL | PTFE/PPL | PTFE/PPL | PTFE/PPL |
| 閥桿 | F304 | F304L | F316 | F316L | 1Cr13 |
| 填料 /墊片 | PTFE | PTFE | PTFE | PTFE | PTFE |
| 螺栓 | A193-B8 | A193-B8 | A193-B8M | A193-B8M | 35CrMoA |
| 螺母 | A191-8M | A191-8M | A191-8M | A191-8M | 45 |
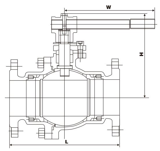
三、Q347F/W/H/Y鑄鋼固定球閥主要外形尺寸:

| 規格 | 尺寸 (mm) | ||||||||
| inch | mm | L | D | D1 | D2 | b | Z-φd | H | W |
| 1/2″ | 15 | 108 | 89 | 60.5 | 35 | 12 | 4-φ15 | 68 | 115 |
| 3/4″ | 20 | 117 | 98 | 70 | 43 | 12 | 4-φ15 | 71 | 130 |
| 1″ | 25 | 127 | 108 | 79.5 | 51 | 12 | 4-φ15 | 82 | 150 |
| 11/2″ | 40 | 165 | 127 | 98.5 | 73 | 15 | 4-φ15 | 107 | 230 |
| 2″ | 50 | 178 | 152 | 120.5 | 92 | 16 | 4-φ19 | 116 | 240 |
| 21/2″ | 65 | 190 | 178 | 139.5 | 105 | 18 | 4-φ19 | 142 | 280 |
| 3″ | 80 | 203 | 190 | 152.5 | 127 | 19 | 4-φ19 | 160 | 310 |
| 4″ | 100 | 229 | 229 | 190.5 | 157 | 24 | 8-φ19 | 185 | 330 |
| 5″ | 125 | 356 | 254 | 216 | 186 | 24 | 8-φ22 | 230 | 600 |
| 6″ | 150 | 394 | 279 | 241.5 | 216 | 26 | 8-φ22 | 250 | 800 |
| 8″ | 200 | 457 | 343 | 298.5 | 270 | 29 | 8-φ22 | 315 | 1000 |
| 10″ | 250 | 533 | 406 | 362 | 324 | 31 | 12-φ25 | 350 | 1200 |
| 1/2″ | 15 | 140 | 95 | 66.5 | 35 | 15 | 4-φ15 | 68 | 115 |
| 3/4″ | 20 | 152 | 117 | 82.5 | 43 | 16 | 4-φ19 | 75 | 130 |
| 1″ | 25 | 165 | 124 | 89 | 51 | 18 | 4-φ19 | 85 | 150 |
| 11/2″ | 40 | 190 | 156 | 114.5 | 73 | 21 | 4-φ22 | 110 | 230 |
| 2″ | 50 | 216 | 165 | 127 | 92 | 22 | 8-φ19 | 120 | 240 |
| 21/2″ | 65 | 241 | 190 | 149 | 105 | 25 | 8-φ22 | 155 | 280 |
| 3″ | 80 | 283 | 210 | 168.5 | 127 | 29 | 8-φ22 | 170 | 310 |
| 4″ | 100 | 305 | 254 | 200 | 157 | 32 | 8-φ22 | 200 | 330 |
| 5″ | 125 | 381 | 279 | 235 | 186 | 35 | 8-φ22 | 245 | 600 |
| 6″ | 150 | 403 | 318 | 270 | 216 | 37 | 12-φ22 | 270 | 800 |
| 8″ | 200 | 502 | 38l | 330 | 270 | 41 | 12-φ2b | 335 | 1000 |
| 10″ | 250 | 568 | 445 | 387.5 | 324 | 48 | 16-φZ9 | 380 | 1200 |
溫馨提示:
本文中所有文字、數據、圖片均只適用于參考。需要查看更多的Q347F/W/H/Y鑄鋼固定球閥性能參數、結構尺寸參數、價格等詳情,或要求高質量印刷樣本,請聯系我們。